malling abbey

1. The new accommodation overlooks the Abbey grounds


malling abbey

2. New construction is built on top of the incomplete 1935 ragg stone structure


malling abbey

3. Infirmary common room with the refectory beyond


malling abbey

4. The Abbey includes buildings from many different periods


malling abbey

5. The new accommodation is built on the incomplete 1935 wing


malling abbey

6. High level view of the garden room with the stainless steel roof visible above


malling abbey

7. The existing building with 'temporary' upper storey


Drawings

malling abbey drawing
malling abbey drawing

malling abbey drawing

Back to top
Back to home page

Simon McCormack


Malling Abbey

New Refectory & Infirmary

Client: The Anglican Benedictine
Community of Malling Abbey

Contract value: £750,000

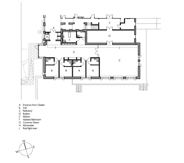
The new infirmary and refectory at the grade 1 listed Benedictine Abbey, which was founded in 1090 by Archbishop Gundulph, replace temporary accommodation dating back to1935, when the construction of a new wing was abandoned due to lack of funds. The common room of the infirmary is on the route into the refectory, ensuring that sick and elderly nuns maintain contact with their community. Taking its form from the existing ragg stone lower storey, the new building is a simple rectangular volume enjoying a southerly aspect and views over the Abbey grounds. A linear roof light introduces sun and daylight into the back of the space and facilitates cross ventilation. All of the internal toilets and bathrooms are provided with natural light and ventilation. External walls are built in English bond load bearing brickwork with a heavily insulated and dry-lined inner skin. Deep thresholds are provided to the windows and cell doors.

Photography of completed project:
Paul Riddle